女儿墙是什么,女儿墙的高度标准是多少?
女儿墙是什么,女儿墙的高度标准是多少?
女儿墙的高度标准是多少
一、女儿墙高度规范要求
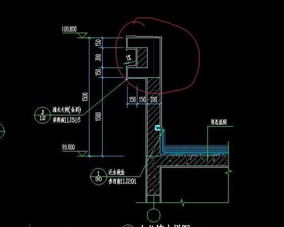
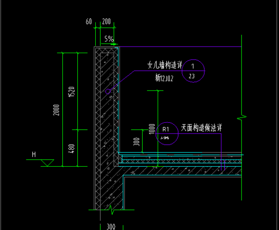
1、女儿墙在建筑上的主要作用,就是为了做好防水收头,也就是常说的女儿墙泛水。一般屋面,找坡、保温、隔热、防水等做完了,约250mm厚,再考虑防水层端部卷起250mm高,女儿墙总共做500mm高(二十一世纪做法一般600、700mm高)。
2、女儿墙高度规范中,对这一高度在不同地方有不同要求,一般都是限制高度。依建筑技术规则规定,女儿墙被视作护栏的作用,如建筑物在10层楼以上、高度不得小于1.2m,而为避免业者刻意加高女儿墙,方便以后搭盖违建,亦规定高度最高不得超过1.5m。毕竟,女儿墙属于非结构构件,在地震时也是不安全因素。
3、至于其他的高度说法,比如:不低于1200mm,都是把女儿墙当作安全防护考虑了,是背离本意的做法。要考虑安全,完全可以在600高女儿墙上再做600或者更高的栏杆作为防护。

为什么工程上女儿墙,不叫儿子墙
女儿墙在古代时叫“女墙”,包涵着窥视之义,是仿照女子“睥睨”之形态,在城墙上筑起的墙垛,所以后来便演变成一种建筑专用术语。特指房屋外墙高出屋面的矮墙,在现存的明清古建筑物中我们还能看到。
后来,女儿墙又叫“睥睨”,指城墙顶上的小墙,建于城墙顶的内侧,一般比垛口低,起拦护作用,是在城墙壁上再设的另一道墙,是“城墙壁的女儿也”。《古今论》记载:“女墙者,城上小墙也一名睥睨,言于城上窥人也。”由此可见,女儿墙不仅与窥人有关,而且还另有一个直露的名字,只是“睥睨”一词太过于瘪口,不如“女墙”含蓄,所以后来“女儿墙”叫法流行较广。

钢结构女儿墙H250*200*6*10是什么意思
表示采用H型钢,后面的数字表示H型钢的截面尺寸,其中:250表示型钢高度,200表示型钢宽度(翼缘板宽度),6表示腹板厚度,10表示翼缘板厚度。(详见下图)

不上人女儿墙用什么材料砌筑
因为女儿墙的作用只是导水和防止人掉下去,不起到承重作用,因此在多层建筑中女儿墙一般用砖砌,具体用什么砖都可以,如页岩实心砖、多孔砖、蒸压粉煤灰砖。
在高层与超高层建筑中,女儿墙一般要考虑“鞭梢效应”的抗震验算,不能验算通过时可采用混凝土浇筑。

脚手架女儿墙什么意思
女儿墙顶就是女儿墙构件的顶部。你是不是想问女儿墙包含不包含压顶。压顶是女儿墙的一部分,所以包含压顶的。

女儿墙怎么命名
女儿墙的命名,是根据使用部位命名的,屋面称为屋面女儿墙,阳台称为阳台女儿墙,

女儿墙是什么为什么叫女儿墙
女儿墙(又名:孙女墙)是建筑物屋顶四周围的矮墙,主要作用除维护安全外,亦会在底处施作防水压砖收头,以避免防水层渗水、或是屋顶雨水漫流。依国家建筑规范规定,上人屋面女儿墙高度一般不得低于1.1m,最高不得大于1.5m。
一个古代的砌匠,忙于工作,不得不把年幼的女儿带在左右,一日在屋顶砌筑时,小女不慎坠屋身亡。匠人伤心欲绝,为了防止悲剧再次发生,之后就在屋顶砌筑一圈矮墙,后来人们就起名“女儿墙”。

女儿墙什么颜色
女儿墙的颜色有很多,有砖红色,白色,灰色,紫红色等。它主要是根据房屋外墙颜色而定。
女儿墙是建筑物屋顶周围的矮墙,主要作用除维护安全外,亦会在底处施作防水压砖收头,以避免防水层渗水、或是屋顶雨水漫流。依国家建筑规范规定,上人屋面女儿墙高度一般不得低于1.1m,最高不得大于1.5m。

女儿墙楼层属于什么意思
女儿墙是建筑物楼顶上高出楼顶顶板的墙,主要起保护作用,也有装饰作用。就相当于家里的落地窗通常会安装防护栏。 上人屋顶的女儿墙的作用是保护人员的安全,并对建筑立面起装饰作用。 不上人屋顶的女儿墙的作用除立面装饰作用外,还固定油毡。

-
- 饲养斑马狗头的方法及注意事项有哪些?十年鱼友为你揭秘养殖技巧
-
2025-11-21 07:25:10
-
- 骆驼趾的解释(骆驼趾是什么意思)
-
2025-11-21 07:22:53
-
- 禁曲破解:《嫁衣》背后的故事
-
2025-11-21 07:20:37
-
- 黄埔军校现在叫什么(黄埔军校现在叫什么学校)
-
2025-11-20 22:46:11
-
- 英语专业,跨考什么专业好?
-
2025-11-20 21:31:45
-
- 女生动了真情的迹象,女生对男人动了真情的表现
-
2025-11-20 14:58:00
-
- 学习化妆穿衣打扮(学会化妆和穿衣搭配就行)
-
2025-11-20 14:55:45
-
- 睡觉忌讳头朝哪个方向风水学(正确的床头摆放方向)
-
2025-11-20 14:53:30
-
- 如何折散老公与小三,怎么拆散老公和小三最管用
-
2025-11-20 14:51:14
-
- 唱双簧是什么意思
-
2025-11-20 14:48:59
-
- 水仙子舟中诗歌鉴赏 美到让人心醉的3首古诗词赏析
-
2025-11-20 14:46:44
-
- 女孩吃感冒药身亡 !医生呼吁:给孩子用药这些误区一定要知道!
-
2025-11-20 14:44:28
-
- 泄洪是什么意思(词语解析之泄洪的真正含义)
-
2025-11-20 14:42:12
-
- 怎么吸引天蝎座男生,如何追天蝎座男生
-
2025-11-20 14:39:56
-
- 起诉老公不给生活费的起诉书(夫妻债务起诉状怎么写)
-
2025-11-20 14:37:40
-
- 合肥90后“女黑老大”杨春燕的罪恶发迹史
-
2025-11-20 14:35:25
-
- 怎样判断自己该不该离婚,女人如何判断该不该离婚
-
2025-11-20 14:33:09
-
- 老公是妈宝男怎么办 妈宝男离婚后的心理
-
2025-11-20 14:30:54
-
- 老公出轨脑疯期应对策略,出轨脑疯期真的控制不住吗
-
2025-11-20 14:28:39
-
- 西安市旅游景点有哪些(西安市旅游景点有哪些地方)
-
2025-11-20 14:26:23



雪燕吃起来有酸味正常吗 雪燕是什么味道
女生说哎什么意思 女生说哎呀是什么意思
小六子是什么梗 网络用语中央开空调是什么意思
结扎有补贴吗?结扎需自费
夫妻在别人家为什么不能睡一起?夫妻不能别人家同床睡
香烟保质期是多长时间 香烟放一年没拆还能抽吗
网络用语真实你是什么意思 网络用语gzy是什么意思
女生说七喜什么意思?女生说七喜暗示什么?
郑多燕小红帽减肥有用吗 郑多燕小红帽的作用
女生说我醉了什么意思?女生说喝多了怎么回复